Průmyslové velké budovy

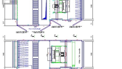
VZT Jednotka o 45000m3/hod

Regulace frekvenčních měničů - 6ks, regulace rotačního rekuperátoru, regulace zvlhčování, regulace přesné teploty a vlhkosti přiváděného vzduchu, regulace průtoku vzduchu, prvky na sběrnici Profibus. V objektu nebylo možné foceni, tudíž pouze pracovní podklady.
VZT Jednotka o 45000m3/hod

Součásti dodávky:

  • Regulace frekvenčních měničů - 6ks, regulace rotačního rekuperátoru, regulace zvlhčování, regulace přesné teploty a vlhkosti přiváděného vzduchu, regulace průtoku vzduchu, prvky na sběrnici Profibus.
  • Vizualizace - lokální, nadřezená
  • Řídí - Siemens Simatic S7+ TP
  • Spolupráce na technické přípravě projektu ze strany elektro, SW (návrh typu FU, čidel, HW vybavení, ...).
  • V objektu nebylo možné foceni, tudíž pouze pracovní podklady.
Máte nějaké dotazy? Kontaktujte nás.